Aktuelle Vermietungen
Seien Sie dabei! Unsere aktuellen Mietangebote
Die Stadthäger Marktpassage bietet Shopping- und Genusserlebnisse unter einem Dach, bei jedem Wetter. Verkehrsgünstig in der Innenstadt Stadthagens gelegen, direkt am Marktplatz trifft man sich hier zum Bummeln, Shoppen und Genießen.
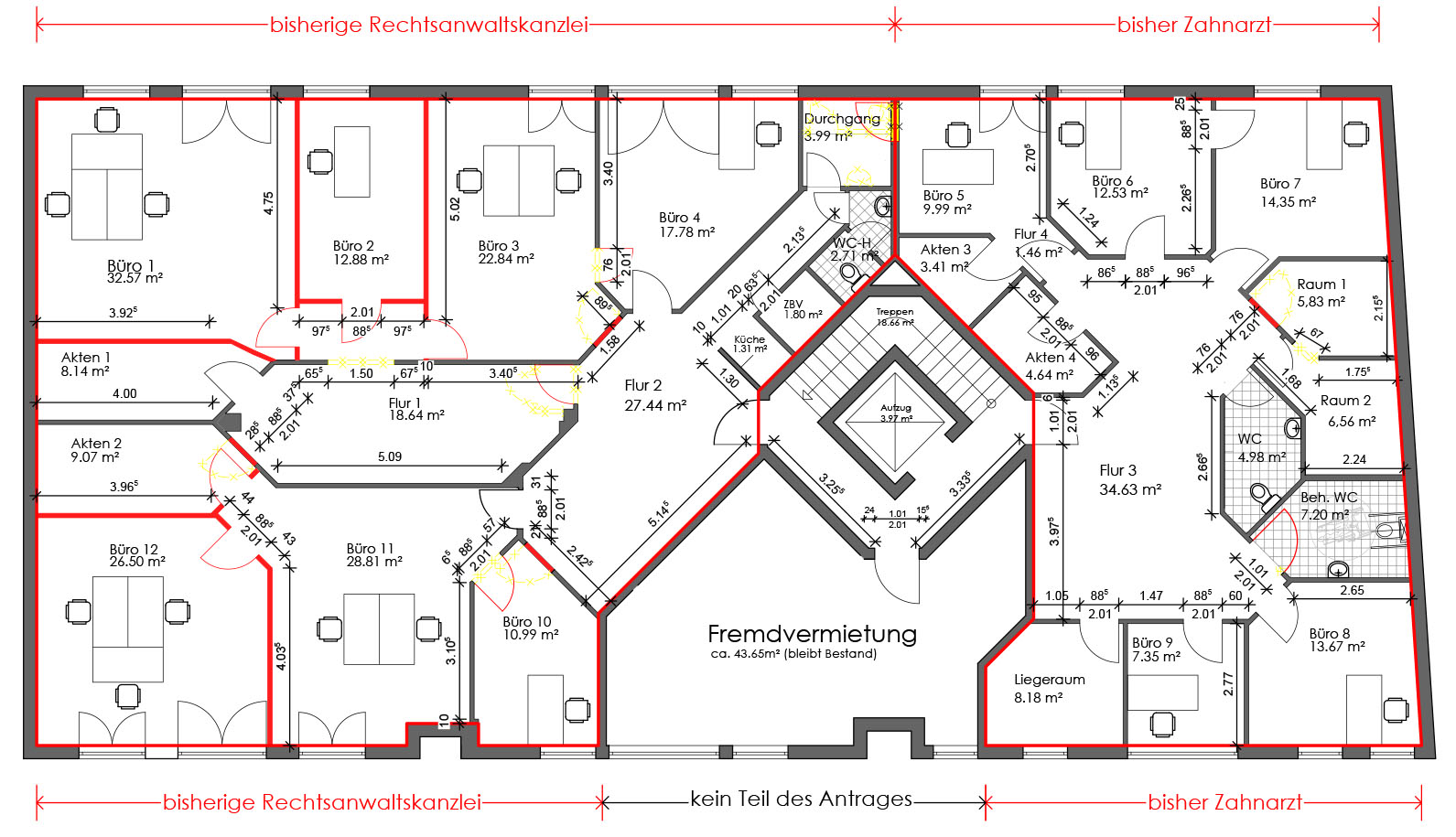
Schlosspassage
Büro und Praxisräume
Schlosspassage, 1.OG,
Obernstraße 38, 31655 Stadthagen
Mietfläche
gesamt ca. 363,56 m² (auch teilbar in 134,67 m² und 228,98 m²)
Mietbeginn: voraussichtlich ab Februar 2026
Mietsicherheit: 3 Monatsmieten
Lager UG: kann zusätzlich angemietet werden
Einstellplätze: können zusätzlich angemietet werden
Besonderheiten: Barrierefrei, Aufzug, Kabelkanäle (Netzwerk) vorhandenÂ
Kundenparkplätze sind vorhanden.
Bisher genutzt von einer Zahnarztpraxis und einer Rechtsanwaltskanzlei.









